Sale Apartments / Flats Hinjewadi Pune

Property Details 22/09/2020
allSale
Residential
Apartments / Flats
17
3
1.1 Crore
10
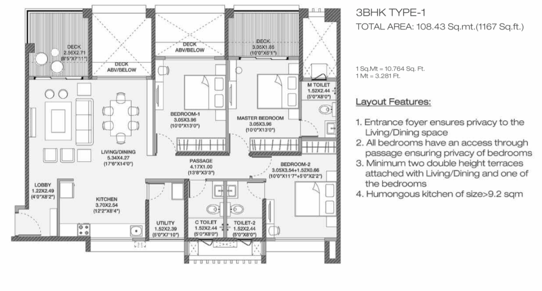
3 BHK
Unfurnished
3
1166 Sq.Ft.
7 Acre
Vetrified
East
Under Construction
//Godrej Elements//
Hinjawadi, home to world-class IT hubs, is a locale that not only enjoys a variety of social infrastructure, but it is just as well-connected to other parts of Pune city. This has made the neighbourhood a top choice amongst home buyers. A blend of luxury, convenience, and security, this address is thoughtfully designed to take care of every element of your life. So, from the very moment you step in, you can always Live Free.
- Car parking
- Security
- Lift facility
- 24 hrs Water Supply
- Power Backup
- CCTV Cameras
- Club House
Related Property Images
